Sabrina B
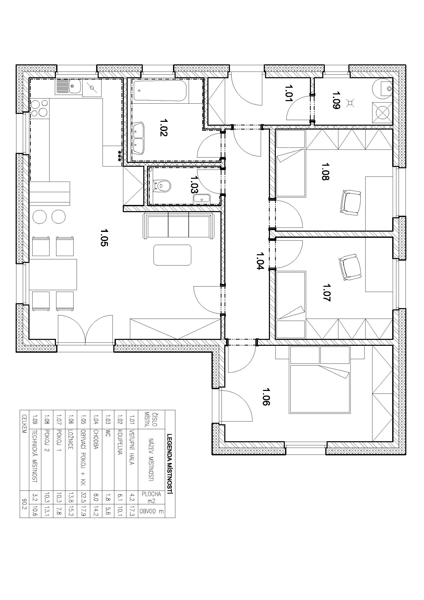
Sabrina B – typ bungalov 4+1 ve tvaru písmene L, půdorys 11,2 x 11,4 m
Tento dům typu bungalov se 4 obytnými pokoji a užitnou plochou 90 m2 je náš nový typový projekt domu ve tvaru písmene L. Je zajímavý celkovou dispozicí s minimem chodeb. Oceníte ložnici spojenou se šatnou, kde jako individuální úpravu si můžete nechat spojit ložnici s terasou pomocí otevíratelných francouzských oken. Když už je řeč o terase – můžete ji mít v základním standardu otevřenou na slunce, nebo si od nás nechte přetáhnout střechu na dřevěný sloupek a můžete mít terasu zastíněnou. Další možnou úpravou je vytvoření venkovního zádveří ve vchodové části, zlepší se tak komfortní čistá zóna domu a získáte i další úložný prostor. Dům je vhodný pro rodinu s jedním nebo dvěma dětmi. Užitná plocha 90 m2, zastavěná plocha 110 m2.
Užitnou plochu lze v rámci klientských úprav zvětšit.
Podívejte se prosím na vizualizace domu a na jeho půdorys. Také doporučujeme k prostudování výbavu domu v sekci Standardy a nadstandardy, ceny naleznete v Ceníku.


















